1002 Seed Frontage Road Unit# 5 Lot# PSL 5 Sicamous V0E2V4
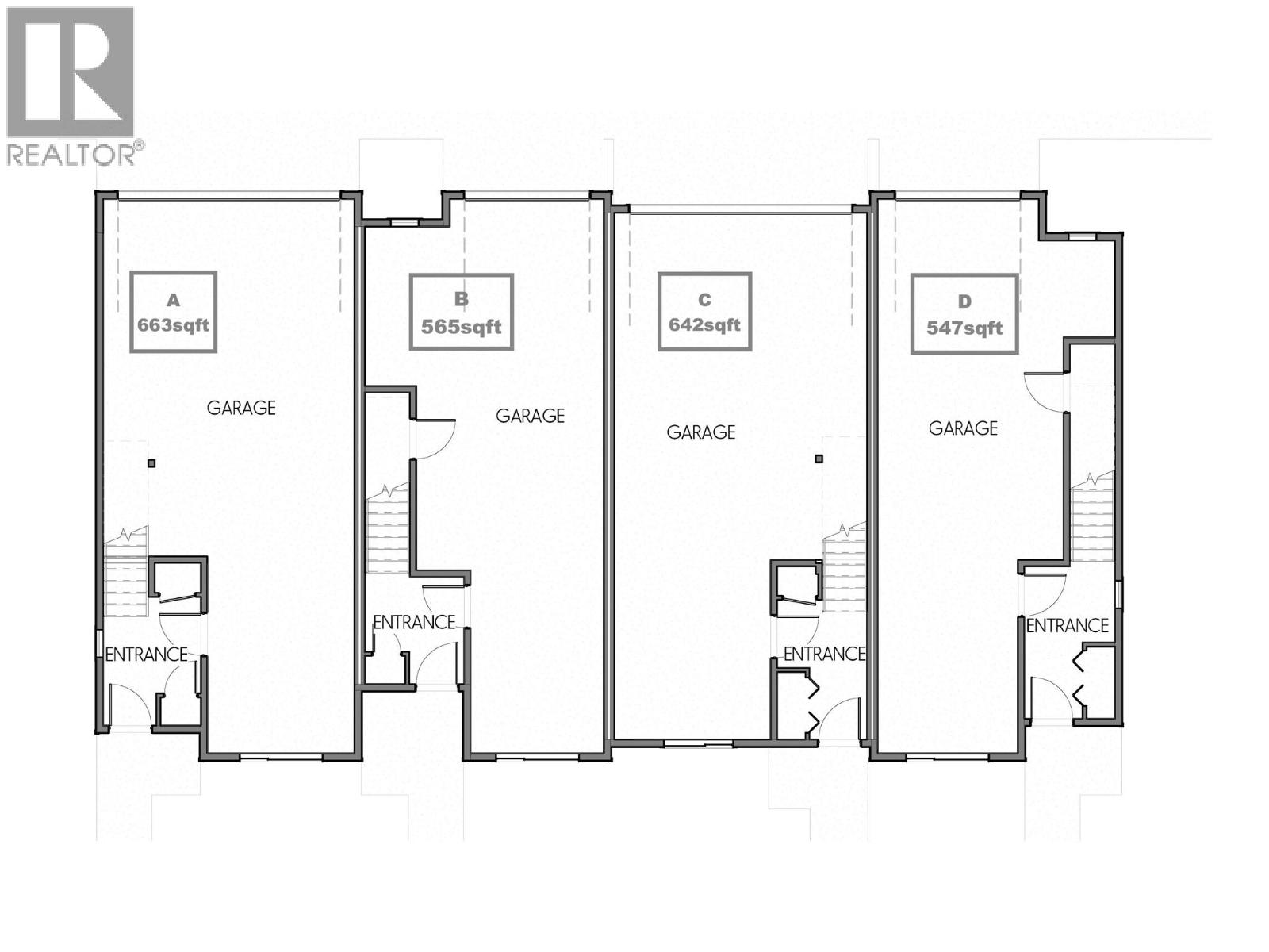
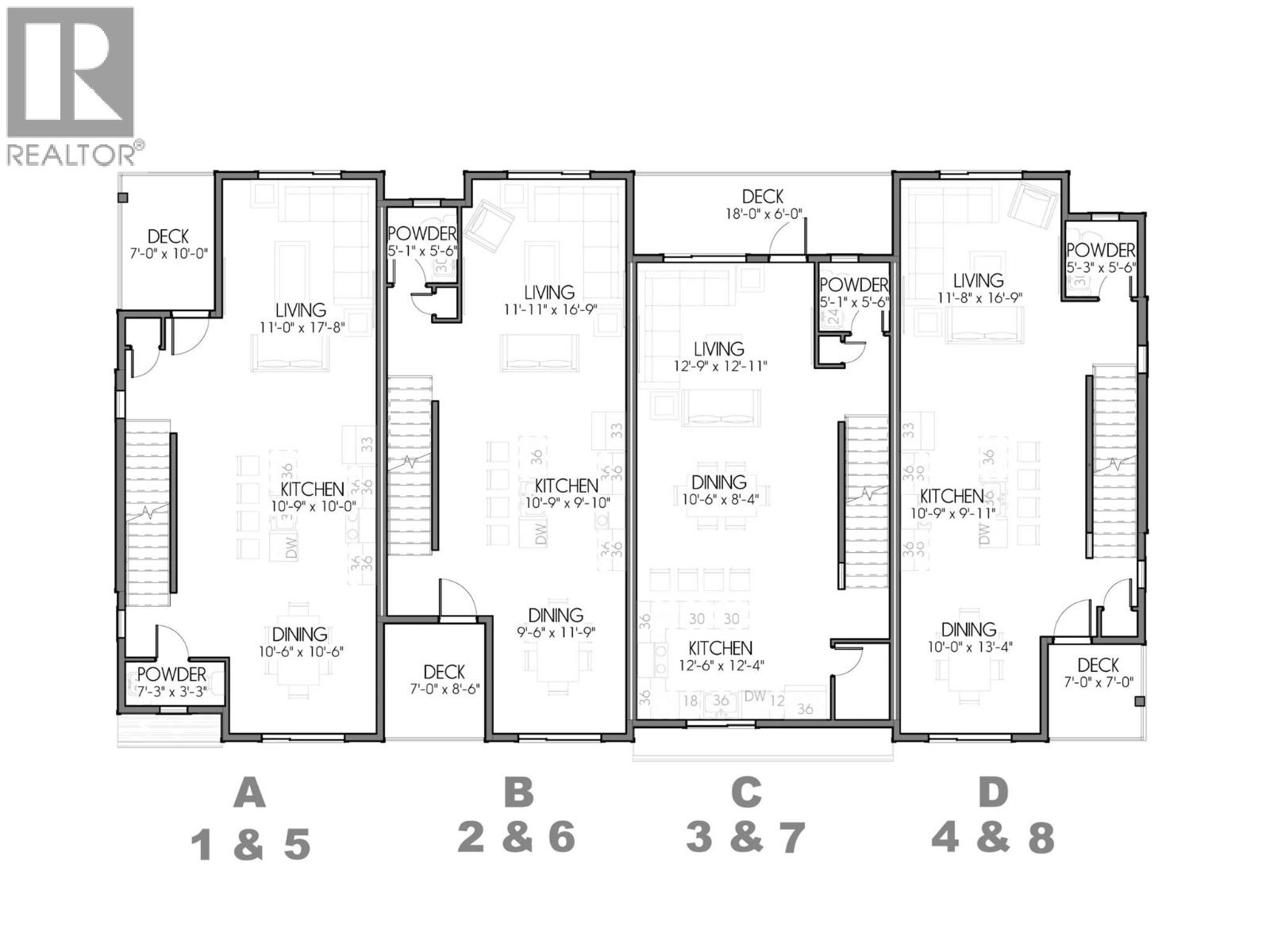
Peaks Landing Phase 1 & 2 are OFFICIALLY SELLING! Over 50% Sold Out, Base Units Starting at $495,000 (see commercial listing). Incentives offered for the next 2 presales. Located in the vibrant heart of Sicamous, British Columbia, this brand-new mixed-use development by Elusion Developments Inc. offers an unbeatable location right along the Trans Canada Highway! With Buildings 1 (Units 1-7) and 2 (Units 8-13), you can have the perfect live-work space that combines a thriving business with the option to live above it. This is a prime investment opportunity in a growing community. Each unit features large 12 ft(W) x 11.6 ft(L) overhead doors, ideal for business or storage of your collector vehicles, snowmobiles or boats and operations, plus a standard bathroom with a toilet and vanity. Enjoy the privacy of your 16x24 backyard, with hot tubs permitted and fencing available as an upgrade. Want even more flexibility? Combine units for more space! Located near the stunning Shuswap and Mara Lakes, Peaks Landing is the perfect place to live, work, and invest! Renderings and photos may not be accurately depicted. (id:56537)
Data from sources believed reliable but should not be relied upon without verification. All measurements are approximate.
Courtesy of : RE/MAX Vernon
1002 Seed Frontage Road Unit# 5 Lot# PSL 5 Sicamous V0E2V4
This site nor its owners, REALTOR® or Brokerage assume any responsibility for the accuracy of its content. You are strongly advised to perform your due diligence.
Use of this site is bound by the Website Terms of Use. The term REALTOR® used under license from CREA.