1361 30 Street SE Unit# 1 Salmon Arm V1E2N4






























































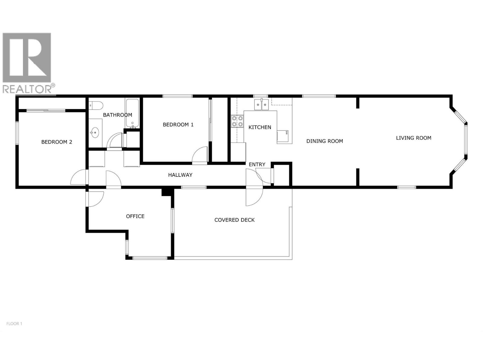
Number 1 Broadview is the perfect opportunity for those looking to downsize without compromise. This pristine mobile home offers an impressive amount of storage space, with potential to convert areas into additional living space to suit your needs. Move-in ready and maintained to the highest standard, it features beautiful bay windows that fill the home with natural light, and a functional layout designed for comfort in all seasons. Recent upgrades (summer 2025) include a newly sealed undercarriage, new air-conditioning system, new furnace, new washer and dryer, upgraded plumbing, plus the newly added luxury of hot water on demand! Also a recent (2021) Silver Label on Breaker Box. Enjoy two sheltered decks ideal for relaxing or entertaining, plus convenient parking for two cars. Located on a bright, open corner of the park, this home combines tranquility with accessibility—just steps from public transport into town and with a mailbox conveniently across the road. Number 1 offers an inviting lifestyle in a well-cared-for community, ready for you to call home. Approximately 1700 square foot including enclosed front porch. (id:56537)
Data from sources believed reliable but should not be relied upon without verification. All measurements are approximate.
Courtesy of : Realty One Real Estate Ltd
1361 30 Street SE Unit# 1 Salmon Arm V1E2N4
This site nor its owners, REALTOR® or Brokerage assume any responsibility for the accuracy of its content. You are strongly advised to perform your due diligence.
Use of this site is bound by the Website Terms of Use. The term REALTOR® used under license from CREA.